【公開終了】東雁来町ガレージハウス



Floor plan

間取り図
1F
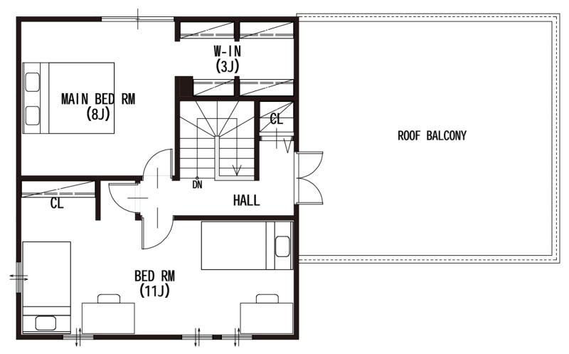
間取り図
2F

3LDK

1F/76.19㎡(23.05坪)

2F/46.37㎡(14.03坪)

延床面積/122.56㎡(37.07坪)

ガレージ/21.53㎡

Contact

参加お申し込み

担当者からのご連絡をもって、
予約完了とさせていただきます。

参加希望日必須

※ 当日の見学予約については、 0120-406-124 までお電話ください。
参加希望の会場必須
氏名必須
ふりがな必須
ご住所必須
ご連絡先電話番号必須
メールアドレス必須
お申し込みのきっかけは何でしたか?必須
ご意見やご質問などがありましたらご記入ください
例:どのくらいローンが借りられるのか知りたい。

建築予定エリアが選択されていません。

※ ご入力いただきました情報は「プライバシーポリシー」に従って取り扱われます。

お住まいの地域(店舗)を
お選びください。