【公開終了】手稲前田モデルハウス『G-LOFT』ガレージ+ロフト









ガレージ&ロフト、土間、
自由な空間が遊び心を刺激する家。

  • 趣味の拠点になるロフト付きガレージ。上から愛車を眺めたり、壁面にプロジェクターを投影して映画を観たり、楽しみ方は無限大!
  • 玄関を入ると広めの土間が。壁一面の棚に、キャンプ道具など趣味のモノを収納。
  • 2階リビングは階段を挟んでダイニング・キッチン側へ視線が抜ける、開放感のある空間。ロフトにも出入りOK。
  • 1階・2階ともしっかり収納を確保。大容量のウォークインクローゼットも。

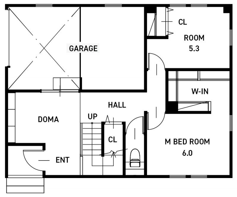
Floor plan

間取り図
1F
間取り図
2F

3LDK

Contact

参加お申し込み

担当者からのご連絡をもって、
予約完了とさせていただきます。

参加希望日必須

※ 当日の見学予約については、 0120-406-124 までお電話ください。
参加希望の会場必須
氏名必須
ふりがな必須
ご住所必須
ご連絡先電話番号必須
メールアドレス必須
お申し込みのきっかけは何でしたか?必須
ご意見やご質問などがありましたらご記入ください
例:どのくらいローンが借りられるのか知りたい。

建築予定エリアが選択されていません。

※ ご入力いただきました情報は「プライバシーポリシー」に従って取り扱われます。

お住まいの地域(店舗)を
お選びください。